Продаю 3-комн. квартиру, 81 кв. м., 6/10 эт.

г Благовещенск, ул Тепличная

13 июля 2021, 13:57
№ 466455
0 (+0)
6 996 090 ₽
86 371 P./м2
Агент

Описание

Количество комнат
3
Ремонт
Черновая отделка
Площадь кухни
12 кв. м.
Этаж
6 из 10
Тип дома
Кирпичный
Общая площадь
81 кв. м.

Комментарий продавца

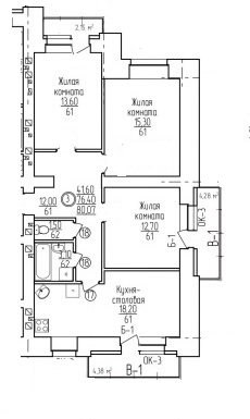
Квартира: Продаю 3-х комнатную квартиру, г/х вода, э/плита, сан узел раздельный, комнаты раздельные, 3 балкона. Качественная черновая отделка. Особенностью этого дома является остекление балконов в пол. Площадь квартиры (с холодными помещениями) – 80,07 кв.м., Площадь квартиры (без холодных помещений) – 76,40 кв.м., Площадь кухни – 18,20 кв.м, Площадь жилая – 13,60/15,30/12,70 кв.м., Площадь холла – 15,10 кв.м., сан узел раздельный - 3,10/1,50 кв.м., 3 балкона – 4,38/ 3,10 кв.м. Застройщик: Амурстрой - старейшая компания Амурской области с безупречной репутацией. Местоположение: Дом расположен в МКР на пересечении Игнатьевского шоссе, улицы Тепличной. Жилой комплекс «Пенсионный фонд» - это крупномасштабный проект жилого комплекса с развитой инфраструктурой, удобными парковками и прекрасными детскими площадками. Инфраструктура: АмГУ, Погран отряд, Молокозавод, Детский сад, Школы, рядом идет строительство новой школы, Продуктовый супермаркет, магазины, ларьки, пиццерия, кафе, развлекательный центр, Фитнес-центр, Гончарная мастерская, Конный клуб. Дом ребенка, Перинатальный центр, Областная больница, Институт СОИ. Транспортная доступность: автобусы: 8, 12, 38, 2к, 4, 11, 30, 36, 36о, 38, 44, 106 ю. Описание здания: Дом 10 этажный. Кирпичный. Сдача в марте 2022 году. На каждом этаже лифтовой холл, 1 грузопассажирский лифт, просторный межквартирный коридор. На площадке 5 квартир. В рамках комплекса будет произведено красивое благоустройство территории и озеленение, установлены яркие развивающие детские и спортивные площадки. Инженерные сети: теплоснабжение – центральное, водоснабжение – центральное, водоотведение – центральное. Отделка квартир: Черновая; Высота потолков в квартирах: 2,75 м, стены оштукатурены, выполнена стяжка пола, электрика, установлена входная дверь, выполнена сантехническая разводка, Установлены водо и электро счетчики, МП окна, трехкамерные, Лоджии застекленные. Условия оплаты: Наличные, Ипотека, сертификаты, материнский и региональный сертификаты. Квартира от физ лица. Если вас интересуют квартиры в новостройке, давайте посмотрим мои варианты сегодня!!!! С каждым днем вариантов становится меньше, а цены становятся выше. Экономьте ваши деньги. Оплата услуг риелтора: оплачивается дополнительно - 2 % от стоимости квартиры. Если возникли вопросы, звоните, буду рада Вам помочь. С уважением Лебедева Оксана Владимировна.
6 996 090 ₽
86 371 P./м2
Агент

Нажав кнопку «Принять», вы даете свое согласие на обработку файлов cookie вашего браузера и использование аналитических сервисов Яндекс Метрика в соответствии с Политикой конфиденциальности. Подробнее. Они помогают нам делать этот сайт удобнее для пользователей. Вы можете запретить обработку некоторых типов файлов cookie в настройках вашего браузера.